Stromverteiler IP54 13Module Verteilerkasten Sicherungskasten Aufputz TpE 3327-000-0000
- Aufputzverteiler 13 Module (1x13) IP54 hermetisch 300x540mm mit transparent getönter Tür von TP Electric
Aufputz Verteilerkasten 13 Module
Aufputzverteiler 13 Module (1x13) IP54 hermetisch 300x540mm mit transparent getönter Tür von TP Electric
Robust und funktional
Der Aufputz Verteilerkasten ist für die Montage von Sicherungen, FI-Schutzschaltern und Steckdosen vorgesehen. Gehäuse IP54 aus Kunststoff, mit transparent getönter Polycarbonat-Tür, Membranen M40–M50, bietet Schutz und Benutzerfreundlichkeit.
Technische Daten
Verwendung: Montage von Sicherungen, Schaltern, Steckdosen
Modulanzahl: 13
Reihenanzahl: 1
Montage: Aufputz
Schutzart: IP54
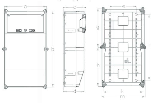
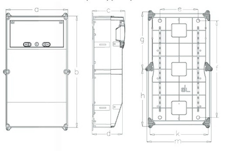
Abmessungen: 300mm x 540mm x 159mm
Genaue Maße: a: 300 mm, b: 540 mm, c: 159 mm, d: 147 mm, e: 185 mm, f: 468 mm, g: 277 mm, k: 282 mm, m: 312 mm
Membranbereich: oben: 3x M40/M50, unten: 3x M40/M50, rechts/links: 4x M32/M40
Gehäusematerial: Kunststoff
Türenmaterial: Polycarbonat
Gehäusefarbe: grau RAL 7035
Türfarbe: transparent getönt
Schraubenmaterial: Kunststoff
DIN-Schiene: ja
Normen: CE, TSE
Hersteller: Tp electric
Artikelnummer: 3327-000-0000
EAN: 8693151654158





















